
Finalista en Mallorca Architecture Awards 2004-2006, COAIB

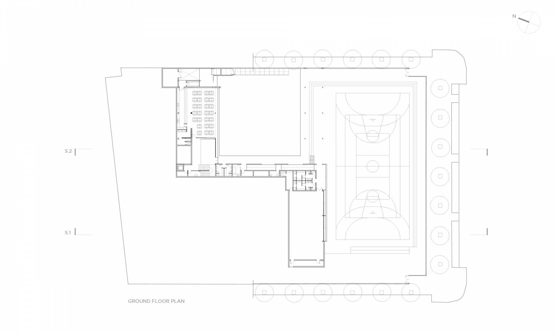
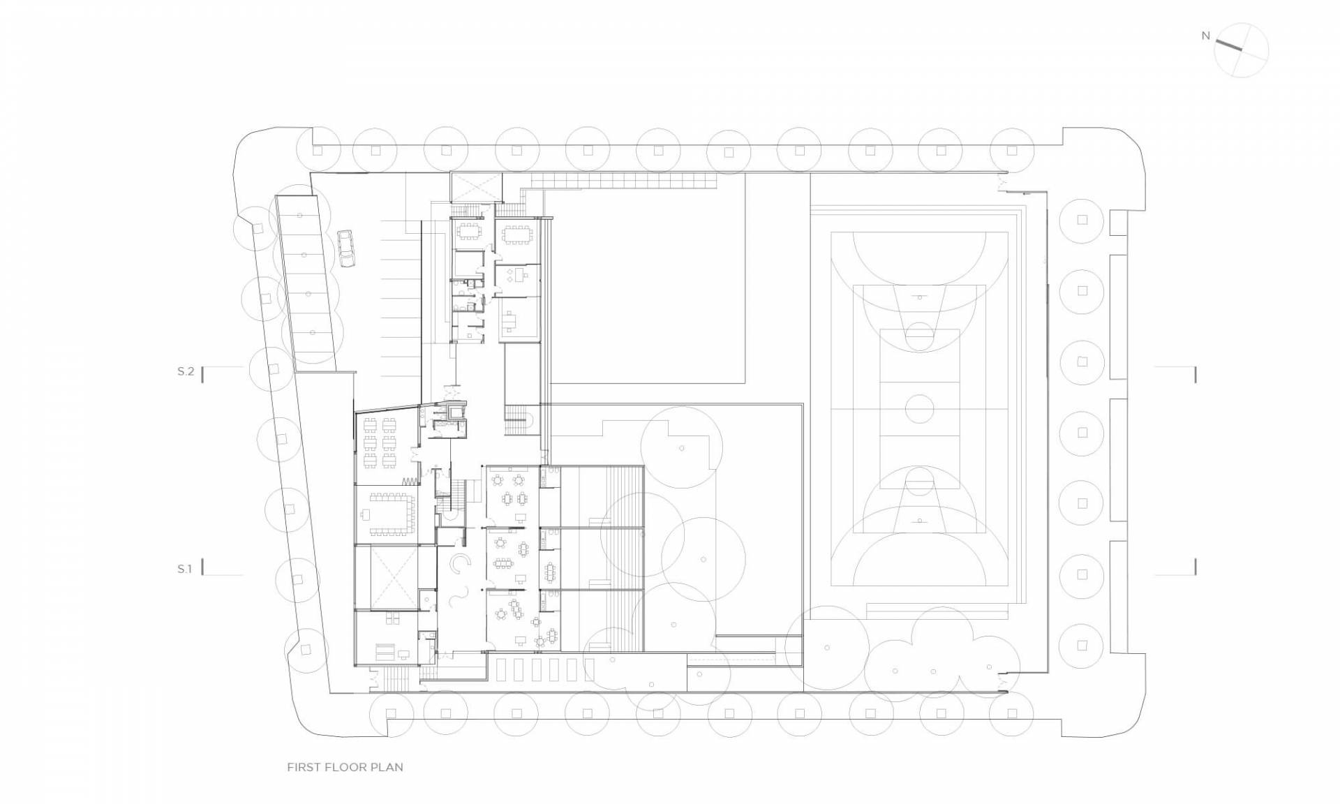
El edificio se ha resuelto en tres niveles, creando una topografía propia, permitiendo la creación diferenciada de los distintos ámbitos y de los correspondientes espacios exteriores.
El volumen principal se sitúa en la parte norte del solar, creando una fachada que da respuesta a la calle de más importancia. A partir de esta se produce el acceso al centro, mediante una rampa, abriéndose hacia la orientación sur, del que se aprovecharán la mayoría de las aulas y espacios exteriores.
Esta planta contiene, la zona administrativa, la zona infantil con su zona de juegos exterior y taller polivalente de primaria. A partir del hall de entrada, a través de una escalera y participando de una doble altura se accede a la planta -1 que contiene servicios, cocina y el comedor que se abre al sur, a la zona de juegos exteriores.
A un nivel más inferior, se sitúa el gimnasio con los correspondientes vestuarios y servicios. Delante de este queda la pista polideportiva, quedando ligeramente deprimida respecto a la calle, lo que permite la aparición de unas gradas.
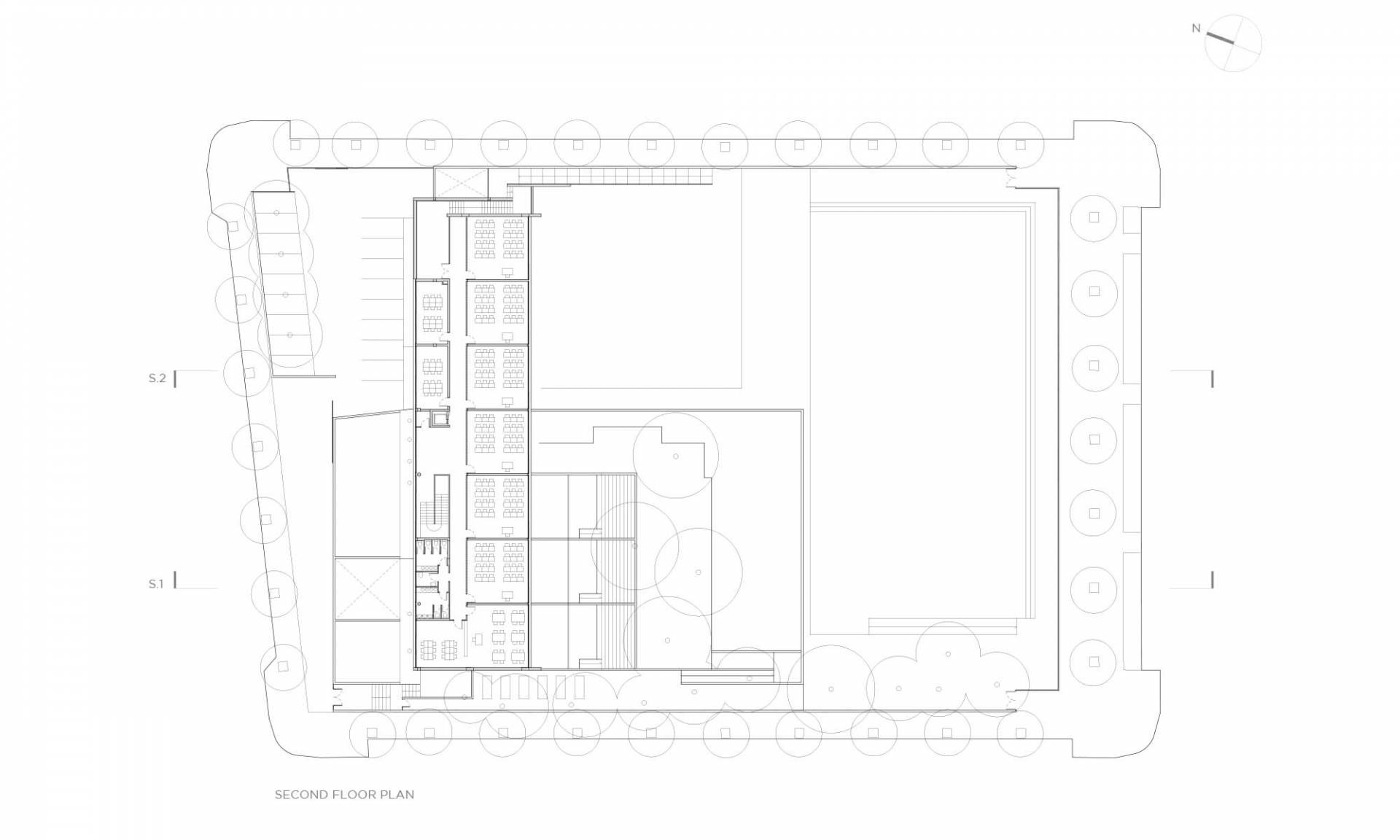
La planta +1 incluye las aulas de primaria, biblioteca, y un acceso al exterior que se abre hacia las vistas de la sierra Tramuntana como un mirador, desde donde se accede directamente a la zona de juegos












