
CASA LA FONT 96
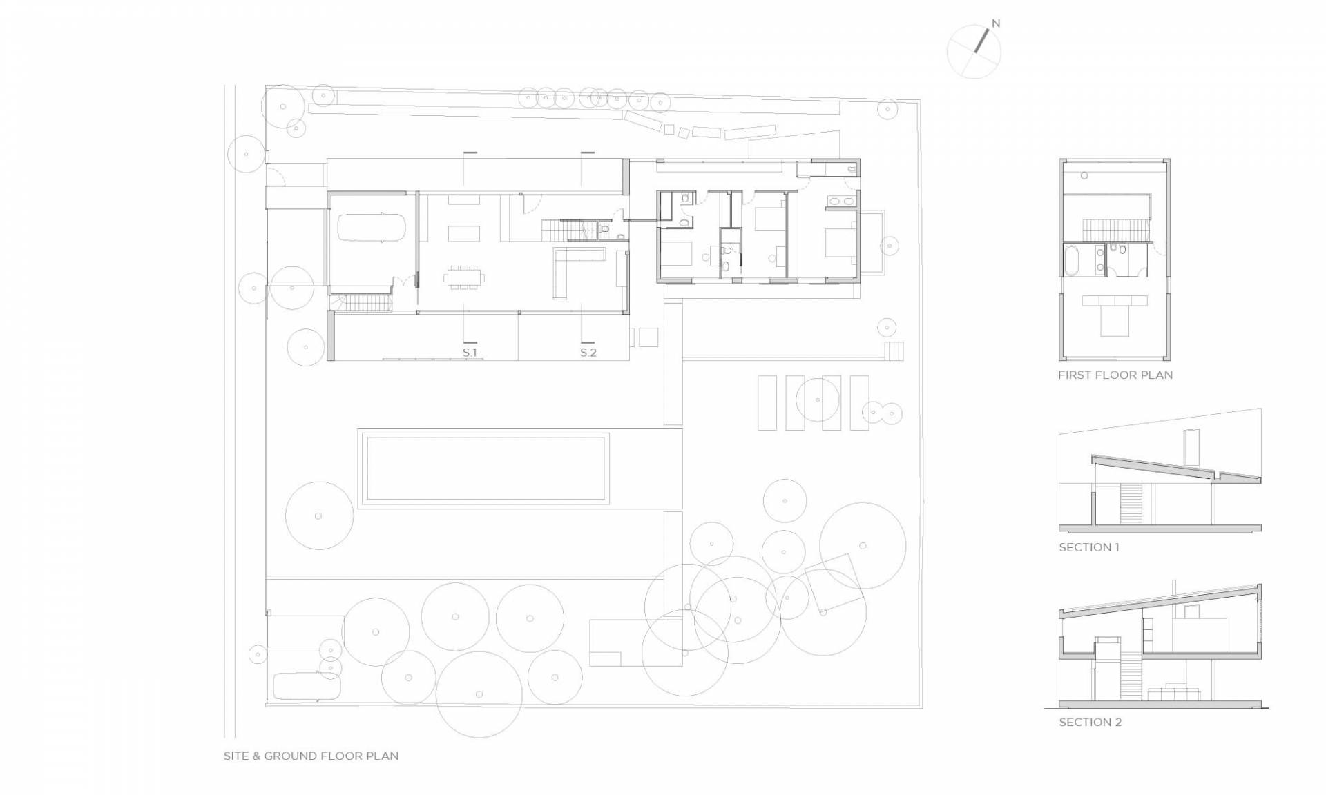
Situación: Pollensa:La Font
Área: 314 m2
Proyecto: 2003
Final de obra: 2006

La vivienda se sitúa en un solar privilegiado, con magnificas vistas y orientación sur. El diseño busca replantear las formas sencillas de la arquitectura vernácula. Se intenta minimizar la cantidad de materiales para los acabados, piedra arenisca para revestimientos exteriores y solados de planta baja, carpintería de aluminio anodizado gris, paredes y techos interiores pintados de blanco. En el hall de entrada aparece de manera escultórica la escalera, revestida de madera, que invita a subir a la planta piso donde se sitúan los dormitorios.







