

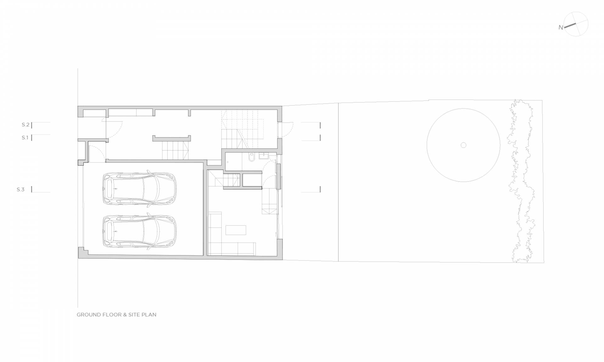
LOCATION AND SITE
The residential building is located in the lively and historic Santa Catalina neighborhood in Palma de Mallorca. The traditional architecture of the area, influenced by early 20th-century modernism, is characterized by the uniqueness of certain details, especially in the facades and in the principal entrances. The narrow plot is situated in Caro Street, one of the main roads of the area. The main facade of the building faces northeast, while the rear overlooks a southwest-facing courtyard, allowing the entrance of abundant natural light. In this way, the living-dining-kitchen space of the residences has a dual orientation, thus achieving cross ventilation, which is highly valued in Mediterranean regions.







DESIGN AND LAYOUT
When analyzing the variety of architectural solutions in the area, especially from the modernist era, the project subtly began incorporating elements inspired by this period. All of this is complemented by a clearly structured facade divided into three parts, reclaiming compositional concepts related to the local architecture. On the other hand, like most of the surrounding buildings, the rear facade is plainer than the main one.

The courtyard preserves the walls made of marès, a local sandstone, as well as the existing olive tree, which, together with the newly implanted Mediterranean plants, conveys a certain character to the outdoor space.


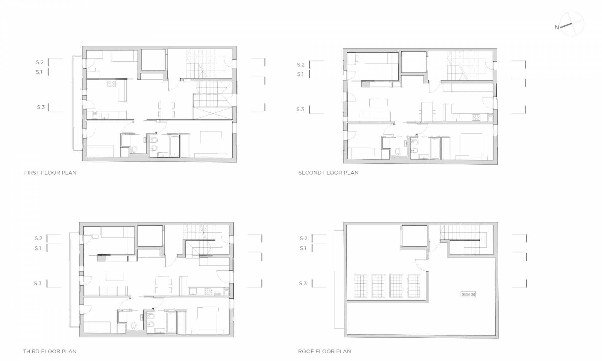
The project includes three residences and two parking spaces on the ground floor. The first-floor residence is a semi-duplex that connects, through a double-height space, to the living room and patio on the ground floor. On the second-floor, the residence consists of only one level, and the one on the third-floor incorporates a staircase that provides access to the rooftop private terrace, offering open views of the city.











SUSTAINABILITY
Photovoltaic solar panels and aerothermal systems are installed to support the building’s electrical supply. The building is highly insulated with the SATE system, and shutters are provided for solar protection. Cross ventilation makes use of the natural sea breeze to regulate temperatures inside the residences in the hot seasons. All these solutions ensure that the building behaves in a highly efficient and sustainable manner.















