

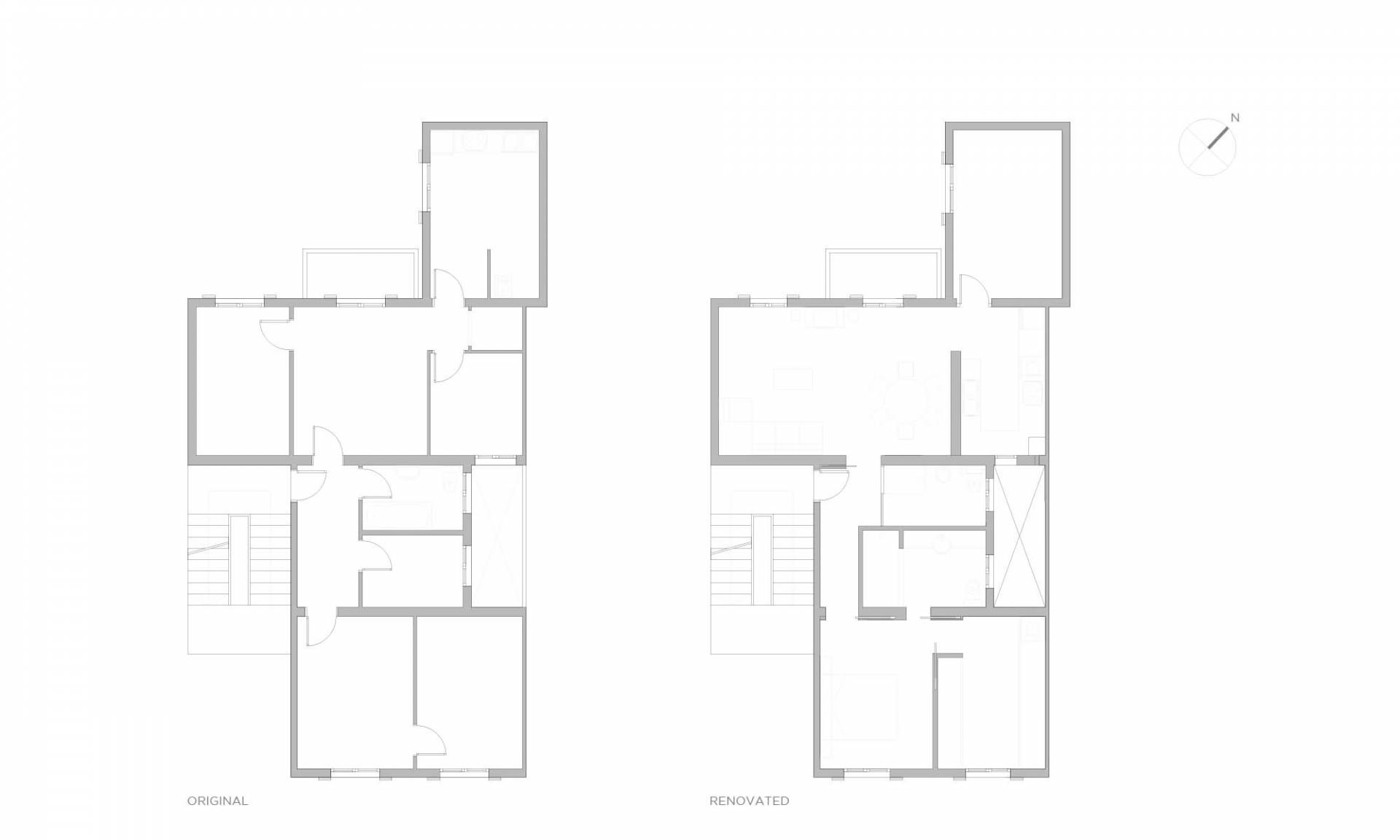
Esta reforma de vivienda existente se sitúa en un edificio plurifamiliar entre medianeras de los años cincuenta en el ensanche de Palma.
Se renueva completamente la distribución, instalaciones y acabados, suprimiendo algunas estancias con el fin de unificar espacios. De esta manera la cocina, comedor y estar participan de un único ámbito, relacionándose de manera abierta.
La madera de haya se utiliza en el suelo de parquet y como material de acabado en la cocina, consiguiendo así una continuidad visual con el plano horizontal y el vertical.
Entremedio se sitúa estratégicamente el office, realizado con madera de DM, convirtiéndose en elemento separador entre la cocina y el comedor-estar, aunque permite su relación visual.
Todas las puertas de la vivienda son correderas, permitiendo un mayor aprovechamiento del espacio. Realizadas con diversos materiales y colores: cristal translucido, DM lacado en blanco, rojo y azul, consiguen dar un acento pictórico al conjunto, contrastando sobre el blanco de paredes y techos.
Entremedio se sitúa estratégicamente el office, realizado con madera de DM, convirtiéndose en elemento separador entre la cocina y el comedor-estar, aunque permite su relación visual. Todas las puertas de la vivienda son correderas, permitiendo un mayor aprovechamiento del espacio. Realizadas con diversos materiales y colores: cristal translucido, DM lacado en blanco, rojo y azul, consiguen dar un acento pictórico al conjunto, contrastando sobre el blanco de paredes y techos.



