

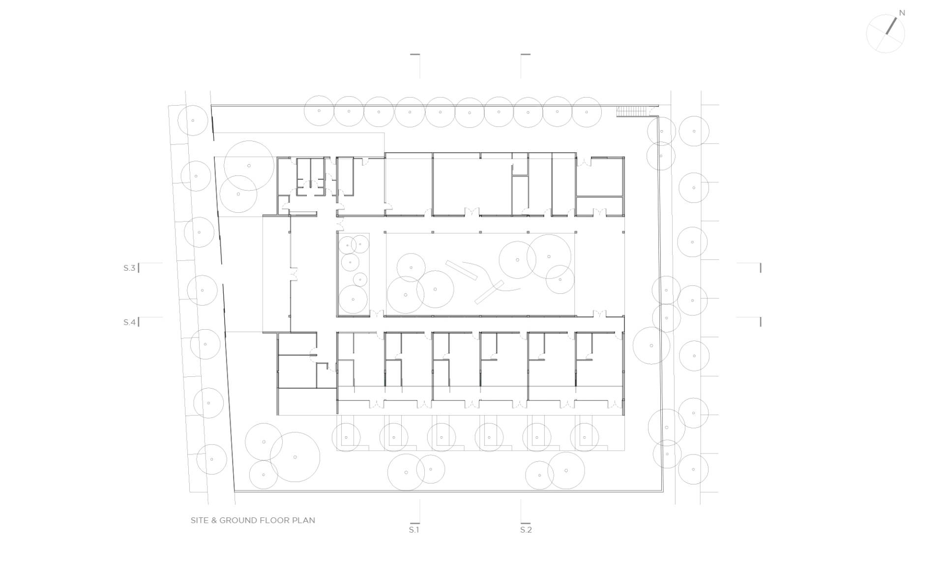
La propuesta proyectada se vertebra a partir de dos cuerpos paralelos a lo largo del solar, orientados hacia el sudeste. Los espacios de circulación se producen alrededor de un patio.
Se mantiene la topografía existente, de esta manera la zona del porche en la fachada sudeste, se convierte en un mirador con vistas parciales hacia la sierra Tramuntana y abiertas hacia el parque público.
Se controlan las vistas hacia el noroeste, utilizando la vegetación como barrera visual ocultando la percepción del edificio vecino de uso deportivo, tal vez un poco desproporcionado.Se accede a la entrada mediante una rampa, prolongándose hacia el vestíbulo de entrada, donde un primer patio actúa como filtro verde. Se crea, de esta manera, una separación visual hacia la zona de aulas, patio de juegos y resto de espacios de uso docente.
La situación del comedor, aula de psicomotricidad y aulas de apoyo permiten la orientación hacia el sudeste , relacionándose con el patio de juegos.
Las seis aulas se disponen a lo largo de un porche que da hacia el patio. La solución propuesta en sección permite la correcta ventilación e iluminación de los espacios.




