

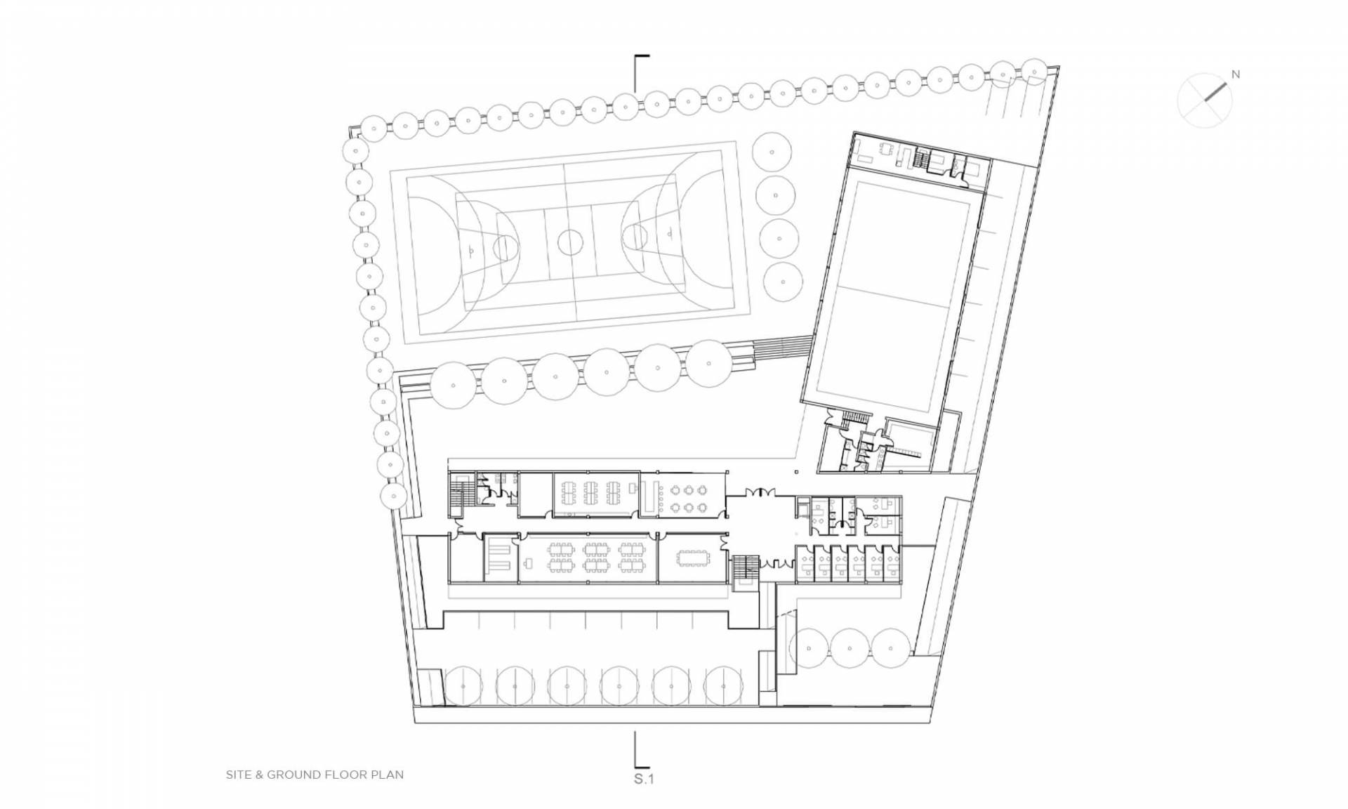
El edificio se resuelve con un bloque principal, paralelo a la calle de acceso, que aprovecha al máximo la buena orientación sudeste y otro volumen que contiene el gimnasio, situado a una cota más baja para adaptarse al terreno.
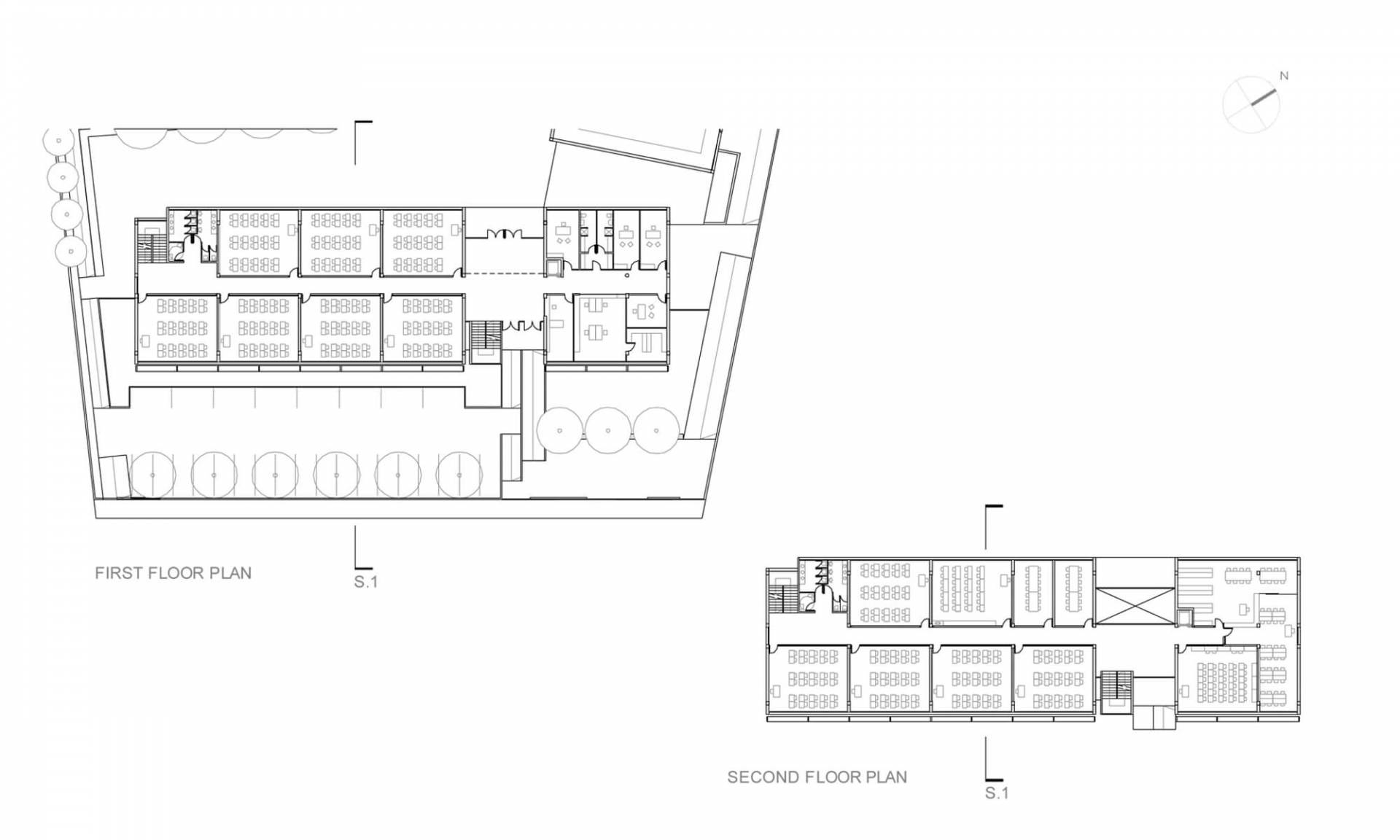
Los dos volúmenes alineados con las calles, ayudan a configurar esta nueva trama urbana. La organización del edificio se resuelve a partir de la situación del acceso principal, que se produce por la planta primera del edificio de aulas, aprovechando la ligera pendiente de la calle y minimizando así los recorridos verticales.Todo el edificio se ha estudiado para conseguir el máximo aprovechamiento pasivo de la energía solar: un reducido factor de forma y máxima apertura a sudeste con protección de “brise –soleil” para evitar el sol del verano y captarlo en invierno.
En la fachada norte, donde las aperturas son más reducidas, se sitúa una zona de arbolado de hoja caduca para la protección del sol de noroeste. La situación del gimnasio y otra zona arbolada permiten proteger los espacios exteriores del viento del norte.





