
Arquitectos: Joan Riera Jaume i Miquel Àngel Lacomba Seguí

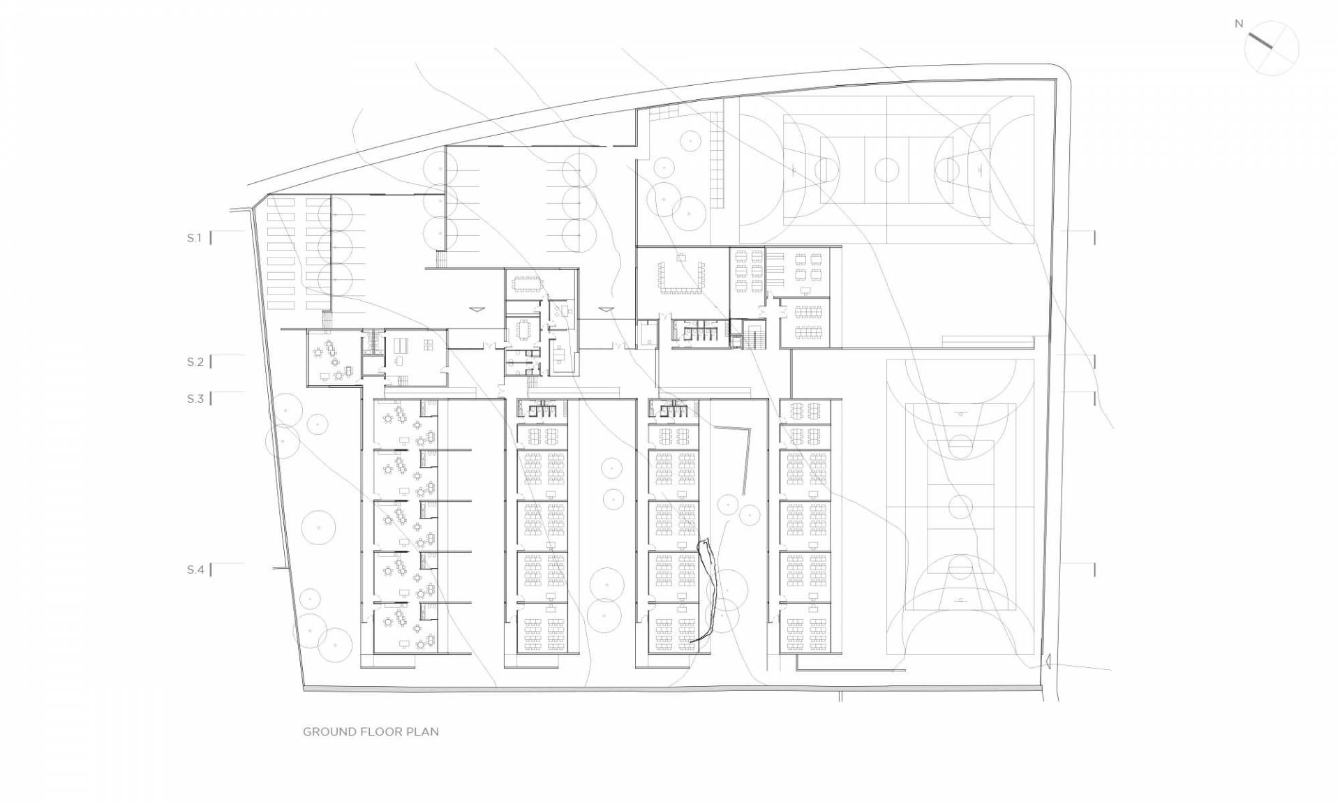
El edifico se organiza en forma de “peine”, situado en un terreno con una ligera pendiente, con buenas vistas hacia la sierra de tramuntana por un lado y una orientación óptima a sur-este por el otro. La propuesta se resuelve con un bloque principal paralelo a la calle de acceso que contiene los espacios de servicio, comedor, salas de profesores, y aulas auxiliares, incluyendo, a un nivel inferior, el gimnasio , relacionado con los patios exteriores. A partir de este cuerpo principal se sitúan los cuatro volúmenes que contienen las aulas , paralelos entre si, orientados a sur-este y adaptados a la pendiente de manera natural, permitiendo de esta manera disfrutar de vistas abiertas y creando entre ellos patios y jardines.



