
CASA SON NA ROSSA
Situación: Marratxi:Cas Carbonell
Área: 208 m2
Proyecto: 2007
Final de obra: 2010

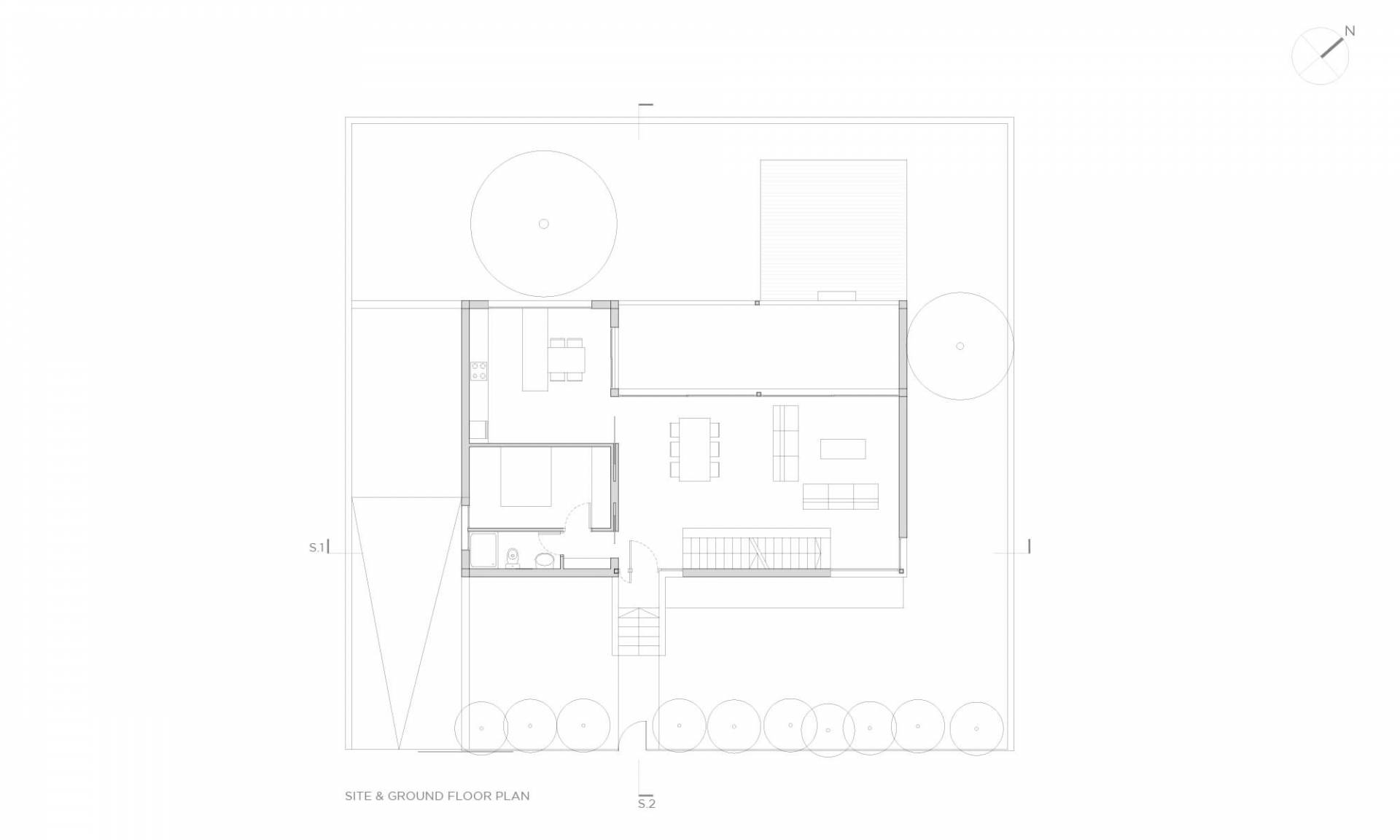
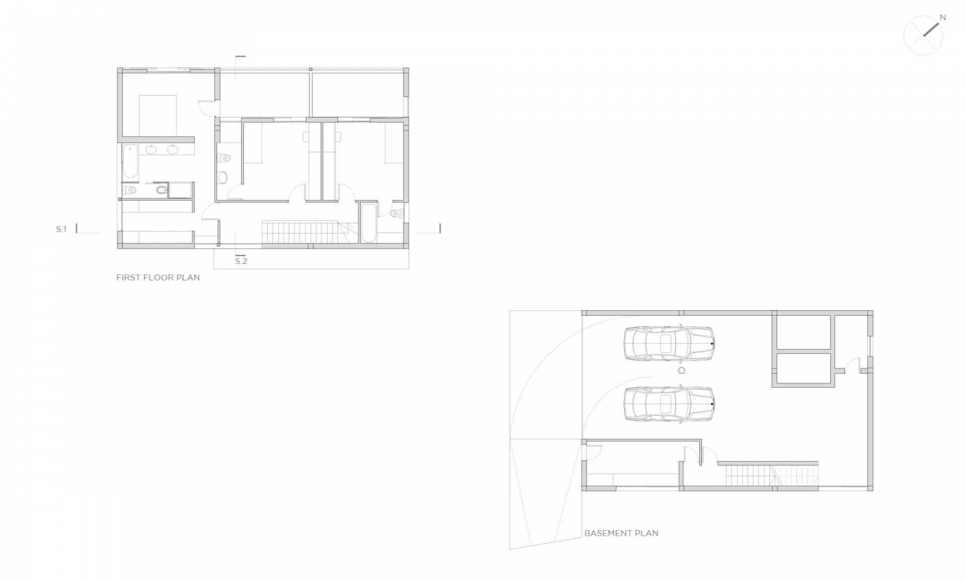
En un barrio residencial de baja densidad, se sitúa esta vivienda unifamiliar aislada. El solar dispone de buena orientación, permitiendo situar hacia el sur la mayoría de estancias de la casa.El edificio se adapta al terreno elevándose lo necesario para poder situar la rampa de acceso al garaje de planta sótano.La fachada principal se separa de la alineación a vial creando un jardín de entrada, que actúa de filtro de lo público a lo más privado.En planta baja se sitúan la cocina y el estar-comedor, orientados a sur y abiertos al jardín. Una escalera ligera, integrada en el espacio de estar-comedor accede a la planta piso donde están los dormitorios.





















