

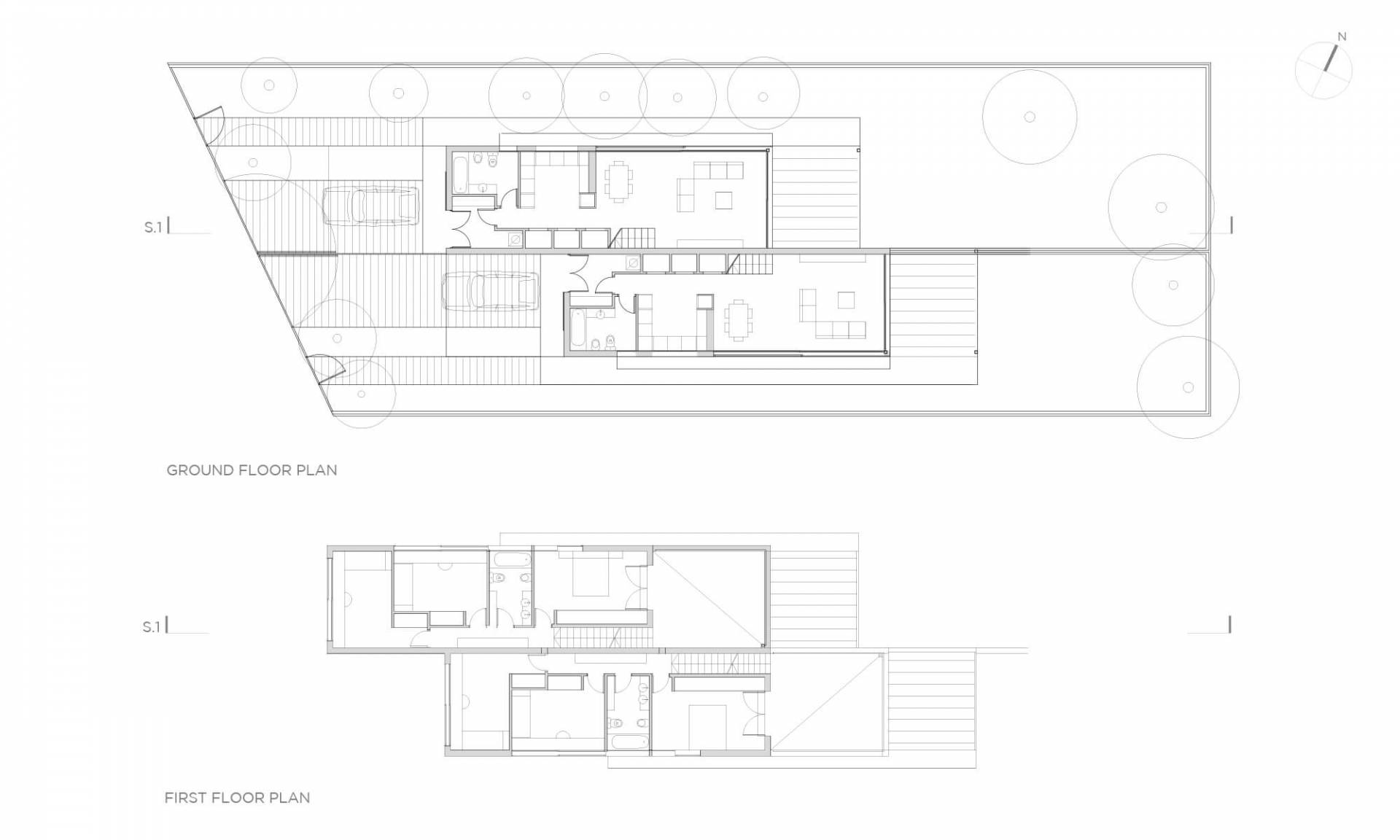
La distribución se soluciona adaptando los espacios a través de un complejo cubículo, estrecho y alargado, en forma de trapecio, rompiendo la distribución del volumen con dobles niveles y aristas. El nivel del suelo se adapta a la forma de la parcela, y el nivel superior se adapta al ángulo de las zonas suspendidas del edificio y las terrazas. Este doble borde crea una transición de un espacio más público a un ambiente más privado a través de un camino que comienza en el jardín principal, cruza la manzana en diagonal y termina en una zona ajardinada más íntima. En la planta baja se encuentran las principales zonas de estar: cocina, comedor y salón, que están conectadas con las zonas exteriores. Mientras tanto, en el primer nivel encontramos los dormitorios vinculados a la terraza y azotea.
La escalera de madera de iroko, que también incluye despensa y armarios, funciona orgánicamente en el espacio como un mueble más. Esto conduce al vestíbulo de la planta baja que está iluminado naturalmente por un tragaluz. El sistema de ventilación cruzada, los paneles pasivos de energía solar y el porche diseñado con pavimento suspendido permite una ventilación privilegiada y evita el exceso de calor en verano. Son soluciones tenidas en cuenta para garantizar un correcto comportamiento bioclimático. La azotea de ambas casas se puede disfrutar a modo de mirador, mirando a la isla de Cabrera y al horizonte.










